Predmet konkursa je urbanističko-arhitektonsko rešenje dela bloka centralne gradske zone, između ulica: Kralja Milana, Svetozara Markovića, Nemanjine i Kralja Milutina u Beogradu.
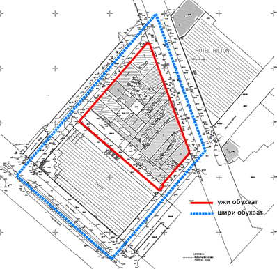
Obuhvat konkursa – uži konkursni obuhvat, koji je predmet konkursnog rešenja, je područje definisano regulacijama ulica Kralja Milana, Svetozara Markovića, Kralja Milutina, i internom saobraćajnicom uz zgradu Narodne banke Srbije. Ukupna površina područja užeg obuhvata konkursa je oko 0,7 ha.
Obuhvat konkursa – širi konkursni obuhvat je ceo blok koji obuhvata i zonu konkursnog rešenja, područje definisano regulacijama ulica: Kralja Milana, Svetozara Markovića, Nemanjina i Kralja Milutina. Ukupna površina područja šireg obuhvata konkursa je oko 1,9 ha.
Povod za raspisivanje konkursa je Odluka o izradi Plana detaljne regulacije bloka između ulica Nemanjine, Svetozara Markovića, Kralja Milana i Kralja Milutina („Sl. list grada Beograda“ br. 130/20)i činjenica da je ovo dragoceno područje u centralnoj zoni grada, danas u neadekvatnom režimu korišćenja (u značajnom delu), zapušteno i neusaglašeno sa afirmisanim potencijalima neposrednog okruženja, kako u smislu urbaniteta, građevinskog fonda i ambijentalno, tako i po pitanju iskorišćenosti funkcionalnih, prostornih i investicionih resursa. Konkurs se raspisuje radi provere prostornih i funkcionalnih kapaciteta lokacije, preispitivanja pravila građenja i urbanističkih parametara definisanih važećim PDR-om za blok između ulica Nemanjine, Svetozara Markovića, Kralja Milana (Srpskih vladara) i Kralja Milutina („Službeni list Grada Beograda” 53/15), a u skladu sa PGR-om građevinskog područja sedišta jedinice lokalne samouprave – Grad Beograd i pribavljanja predloga za što kvalitetnije urbanističko- arhitektonsko rešenje kojim će se definisati namene, kapaciteti i morfologija nove izgradnje u okviru konkursnog obuhvata i njen odnos sa okolinom, posebno u odnosu na izgrađene objekte više spratnosti sa ciljem da se zaokruži urbana transformacija navedenog bloka.
Cilj konkursa je da se, u skladu sa konkursnim zadatkom, programskim zahtevima, značajem i potencijalima lokacije, izabere najkvalitetnije urbanističko-arhitektonsko rešenje, koje korespondira sa okruženjem i prilagođeno je vrednostima ambijenta. Težnja je da se kroz konkursne aktivnosti sagledaju aktuelni potencijali prostora u skladu sa današnjim kulturno-istorijskim kontekstom, značajem i razvojem predmetnog prostora, uz anticipaciju budućeg razvoja.
Cilj konkursa je da se, na osnovu analize prostornih kvaliteta, potencijala i ograničenja, kao i potreba i zahteva neposrednog i šireg okruženja:
- definišu optimalne (najracionalnije i najkvalitetnije) razvojne mogućnosti prostora i potencijali za novu izgradnju;
- definišu celine prema nameni i sadržaju objekata u skladu sa planskim, ambijentalnim i drugim karakteristikama za koje se mogu odrediti pravila građenja kroz plansku razradu;
- definišu visinske regulacije u odnosu na susedne strukture, naročito dva dominantna objekta u okruženju: Narodne banke Srbije i Hotela „Hilton“;
- preispita prostor i sa svih drugih aspekata kako bi se lokacija sadržajno i oblikovno razvila u skladu sa pozicionim i suštinskim značajem za neposredno okruženje i grad u celini;
- preispita i definiše, kroz prostorno-programsku proveru, najoptimalniji odnos planiranh namena i sadržaja: stanovanje, poslovanje, trgovina i sl., a u skladu sa širom pozicijom bloka u urbanoj matrici grada;
- definiše prepoznatljivo urbanističko-arhitektonsko rešenje adekvatno značaju lokacije koje korespondira sa okruženjem;
- da se odrede i definišu pešački prodori kroz blok, sagledaju vizure i stilske karakteristika objekata.
Izabrana rešenja predstavljaće osnov za formulisanje planskog rešenja i izradu urbanističko - planske dokumentacije za predmetno područje.

Slika 1 - Orto-foto snimak sa granicom konkursa.jpg

Slika 2 - Katastarski plan sa granicom konkursa